Campus Crossing

Studio IV-Semester I

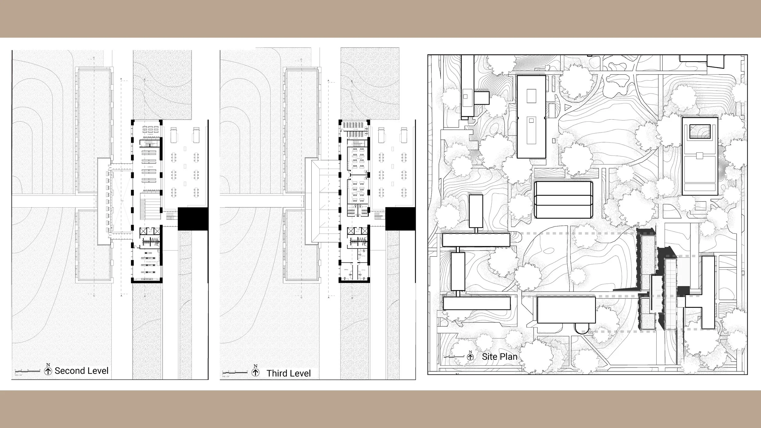
Partnered with Colton Douglas, tasked with creating a culinary institute focused on integration with the surrounding campus of Drake University. We chose to create smaller masses pushed to the side of the site, to leave the main window into campus open, as the site was previously a commuter lot with that intention. Our building is split into 3 masses, reflecting the 3 program functions, with popular campus highways separating them. The site had a slight slope, so we buried our building into the topography to gain an extra story to meet the square footage requirement while occupying a smaller footprint on the site. In the middle of the 3 masses, we created a light atrium space that connects the 3 masses and invites passers into our building, even if trying to just pass through.

Plans

Plans

Sections

Section + Model

Detail Section

Exterior Render

Interior Render

Interior Render

Exterior Render

Approach Render

Approach Render

Previous
Previous

Oasis